Cottage cosy
Member
- Messages
- 19
- Location
- Midlands
Hello all!
I and my partner have been long term lurkers on this forum, shamefully *borrowing* advice and information from you well informed bunch! I thought it was about time that i said hi and shared with you all some pictures of our project (I know how much you all love pictures!)
Just before christmas we became the owners of a lovely old 17th century grade II listed cottage(s). Unfortunatley the old lady has not been very well looked after and has all the horrific modern alterations that we come to expect these days (think giant pebbledash interior finishes, cement render, acrylic based paints, a horrible breeze block extension etc). Anyway, we fell in love with her potential and will be doing all (as much as we can) the work ourselves. For now, we are still living at our current house but when that sells we will be moving in (even if that means into a tent!). We have a fantastic CO officer who is really supportive and we are expecting the outcome of our LBC in the next week or two. Anyway here is a picture of her:

To give you a bit of the history:
The house itself is of ‘solid walled construction’ and consists of at least two phases of building; an earlier part timber framed cottage, probably early 17th Century and newer, probably late 18th century additions to the rear. The timber frame is in two distinct separate halves with back-to-back frames in the middle of the building. It is hard to say which was built first; one was probably a thatched residence, and the other built as a barn, then converted for living at a later stage. Thatching cleats are still visible on one or two of the original roof rafters, although these are now not carrying the roof and have newer rafters above them. Victorianisation has resulted in removal of parts of the lower frame, including corner posts, and replacement with brick. The original stone plinths are still visible in places. The 18th century buildings are joined by a break-though opening in the wall of the earlier house.
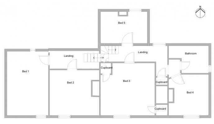
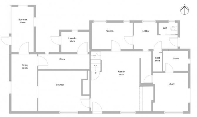
This is the layout of the house when be bought it:


That is all I have time for for now but I will post some pictures of the inside when i get a minute this weekend.
As a side note, I have intentionally not posted the location of the house. If you think you know where it is I would kindly ask that you not place that information on here for now.
Thank you!
I and my partner have been long term lurkers on this forum, shamefully *borrowing* advice and information from you well informed bunch! I thought it was about time that i said hi and shared with you all some pictures of our project (I know how much you all love pictures!)
Just before christmas we became the owners of a lovely old 17th century grade II listed cottage(s). Unfortunatley the old lady has not been very well looked after and has all the horrific modern alterations that we come to expect these days (think giant pebbledash interior finishes, cement render, acrylic based paints, a horrible breeze block extension etc). Anyway, we fell in love with her potential and will be doing all (as much as we can) the work ourselves. For now, we are still living at our current house but when that sells we will be moving in (even if that means into a tent!). We have a fantastic CO officer who is really supportive and we are expecting the outcome of our LBC in the next week or two. Anyway here is a picture of her:

To give you a bit of the history:
The house itself is of ‘solid walled construction’ and consists of at least two phases of building; an earlier part timber framed cottage, probably early 17th Century and newer, probably late 18th century additions to the rear. The timber frame is in two distinct separate halves with back-to-back frames in the middle of the building. It is hard to say which was built first; one was probably a thatched residence, and the other built as a barn, then converted for living at a later stage. Thatching cleats are still visible on one or two of the original roof rafters, although these are now not carrying the roof and have newer rafters above them. Victorianisation has resulted in removal of parts of the lower frame, including corner posts, and replacement with brick. The original stone plinths are still visible in places. The 18th century buildings are joined by a break-though opening in the wall of the earlier house.
This is the layout of the house when be bought it:


That is all I have time for for now but I will post some pictures of the inside when i get a minute this weekend.
As a side note, I have intentionally not posted the location of the house. If you think you know where it is I would kindly ask that you not place that information on here for now.
Thank you!






